醫院負壓隔離病房區空調設計案例
華銳凈化工程 2020-01-31 17:24:57 閱讀
近些年來負壓隔離病房的建設在我國發展很快,但由于過去我國一直沒有負壓隔離病房的規范標準,負壓隔離病房的設計和建造不可避免地存在一些問題。本文以四川省某醫院整個負壓隔離病房區作為污染受控隔離對象,結合合理的平面布局分區、相鄰區域及房間之間的壓差控制、過濾器的合理配置以及氣流組織形式的控制等措施來完成該醫院隔離病房區的空調設計。

1、建筑平面
圍繞將整個負壓隔離病房區作為污染受控隔離對象這一核心設計思路,在平面布局上遵循“功能符合、流程短捷、潔污分明、分區合理”的設計原則,在與該醫院反復溝通后最終達成以下共識:
1)負壓隔離病房區獨立設置在東南側盡頭,自成一區,盡量減少干擾,便于隔離與管理。
2)負壓隔離病房均按雙人間設計,每間負壓病房單獨配置一個緩沖前室與衛生間,另包括相應的醫護走廊、醫生辦公室、治療室、護士站、污洗消毒間等輔助用房,吊頂高度均為2.8m。
3)將整個隔離病區劃分為半污染區和污染區。醫護人員、病人、潔凈物品及污物的走向科學、合理,杜絕任何交叉感染,體現人性化設計特點。
其中半污染區包括:病房與內走廊之間的緩沖區、醫護人員走廊、治療室、醫生辦公室、護士站等區域;
污染區包括:隔離病房、衛生間、病人走廊以及污洗消毒間。以往一般把隔離病區劃分為三區即污染區、半污染區、清潔區,其中清潔區主要包括醫護走廊、醫生辦公室、治療室、護士站等輔助用房,但該負壓病房的清潔區主要指除了隔離病房區之外的區域,隔離病區內部無清潔區。
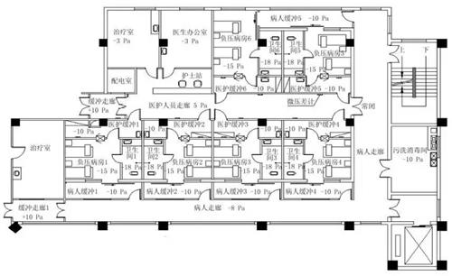
4)不同區域跨區即病房入走廊與走廊至外界之間設置緩沖室,降低人員進出、門開關及相連房間由于溫差的動態變化而造成的污染物擴散,大大提高動態隔離能力。從圖1可以看到,病人走廊、醫護人員走廊與隔離病區外的清潔區之間分別設置緩沖走廊1、緩沖走廊2;每個病房與醫護人員內走廊之間都設置了緩沖間。

圖1 隔離病區平面圖
5)除消防安全門外,區域內門均向壓力高的一面開啟,可增加門的密閉性。根據隔離病房區內部污染程度的不同來確定門的開啟方向,比如衛生間門應向病房門一側 開啟。 此處主要借鑒《潔凈廠房設計規范》中潔凈室內的密閉門應朝空氣潔凈度較高的房間開啟這一要求。而消防疏散門必須滿足消防要求,向疏散通道方向開啟。
6)負壓隔離病房的位置設計充分考慮到自然采光,再利用通透玻璃隔斷,可一定程度緩解病人的壓抑與不安,有助于治療效果。一般情況下病人需要在隔離病房呆一段時間,在此期間病人的情緒對治療的效果影響很大,病人如果一直處于壓抑與不安狀態不利于康復。為此,在6個負壓病房的位置設計時,充分利用了自然光甚至自然景觀,吊頂高度設置2.8 m 也有這方面因素的考慮。

2、空調系統
室內外設計參數
夏季空調室外計算干球溫度 35.2 ℃,空調室外計算濕球溫度 26 ℃,大氣壓力 95920Pa;冬季空調室外計算溫度 -8 ℃,空調室外計算相對濕度67%,大氣壓力 97870Pa。
污染區及半污染區夏季空調室內設計溫度為24~28℃,相對濕度為45%~65%;冬季空調室內設計溫度為18~22 ℃,相對濕度為 35%~55%。
空調系統劃分
半污染區、污染區分別設置空調系統:6間負壓病房均采用一拖一形式,各采用一套全空氣系統;半污染區獨立采用一套全空氣系統;病人走廊只考慮排風系統;4,5,6號負壓病房需要切換到全新風運行(空調系統原理圖見圖2,空氣處理機組的換氣次數見表1),以滿足隔離烈性傳染病人的需要。
空調系統性能和特性
1)空調系統采用全空氣系統,與頂棚采用風機盤管相比,能夠避免凝結水的積存帶來的二次污染、漏水及噪聲等問題。
2)6間負壓病房均采用一拖一形式,每個負壓病房獨立循環,不但使用更加靈活、節能,而且能夠避免或減少病人之間的交叉感染。
3)空調系統24h運行,夜間風量可切換到低擋運行,以免打擾病人休息。
4)1,2,3號負壓病房采用自取新風形式,且可切換為全新風供給,以滿足烈性傳染病人治療與隔離需要。
5)空調機組采用單進風離心風機,以滿足小風量高靜壓的要求。
6)空調機組與排風機聯鎖控制。
7)病人走廊只設置排風系統,不考慮空調系統,以達到節能的目的。
8)送風口布置在房間的一側,與病床相對,使醫護人員處于上風側,排風從病床一側排出。

空調控制措施
對于負壓隔離病房所需要采用的空調控制措施主要從以下方面著手:各區之間采用一定的壓差控制;用空氣過濾的物理方法有效清除空氣中細菌及病毒,以送入清潔空氣;依靠室內氣流組織及送風量,稀釋和排走室內污染物。
1)壓差控制
壓差控制的主要目的在于防止污染物由污染區擴散到清潔區,使潔污區域之間形成合理氣流且定向流動,通過調節送風量、回風量、排風量之間的差值來實現(壓差設計值詳見圖1)。從圖1可以看出,除與清潔區相通的緩沖走廊 1、緩沖走廊2保持10Pa正壓外,其余房間均為負壓。
負壓程度由高到低依次為衛生間、負壓隔離病房、病人走廊、緩沖間、醫護走廊、醫生辦公室。這也有別于以往負壓病房的設計,應該以整個負壓隔離病房區作為污染受控隔離對象,在此基礎上進行壓差控制,更有利于防止污染物的擴散。有壓差要求的相鄰場所,在相通的門口目測高度安裝微壓差計。
2)空氣過濾
負壓隔離病房送風符合 DN11/409—2007《醫院感染性疾病科室內空氣衛生質量要求》的要求,送風口采用初阻力僅為 20Pa的超低阻高中效過濾器;半污染區、緩沖間(緩沖間換氣次數取 60h-1)送風口均安裝高效過濾器;負壓隔離病房內的回風與排風以及衛生間排風均安裝可安全拆卸的零泄漏高效回(排)風裝置;負壓病房輔助區即半污染區的回風口同樣采用超低阻高中效過濾器。
3)氣流組織
負壓隔離病房內采用上送下側回的氣流組織,室內送風先經過醫護人員再流向患者,最后由排風口排出,形成定向合理的氣流流動,保證病人呼出的污染物快速有效地排除。應盡量避免出現死區、氣流停滯和送排風短路等情況;同時還要考慮為病人提供舒適的休息環境,為醫護人員提供健康的工作環境。病房主送風口設于病床邊醫護人員站位頂棚處,次送風口設于病床床尾頂棚處。由于是雙人病房,故送風口集中于兩床之間布置,有利于控制污染傳播。
針對以空氣為傳播媒介的傳染病毒的特性,提出以整個負壓隔離病房區作為污染受控隔離對象設計的思路和特點,再結合合理的平面布局分區、相鄰區域及房間之間的壓差控制、過濾器的合理配置以及氣流組織形式的控制等措施來提高負壓隔離病房的隔離能力。

醫院層流手術室裝修的發展及建設標準要求依據
各種品牌精密空調溫度傳感器的阻值(超級實用)